2 Bedroom
3 Bathroom
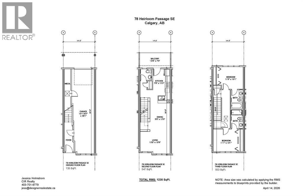
1,235 ft2
None
Forced Air, Other
Landscaped
$399,900Maintenance, Condominium Amenities, Common Area Maintenance, Insurance, Ground Maintenance, Property Management, Reserve Fund Contributions, Waste Removal
$229.71 Monthly
A DOUBLE TANDEM ATTACHED GARAGE SETS THE TONE—THIS 3-STOREY TOWNHOME FOLLOWS THROUGH.This is the Iris model at Poppy in Rangeview—3 storeys that split living, sleeping, and entry exactly where you want them. The garage gives you two-car parking without the usual outdoor shuffle, plus enough STORAGE SPACE to keep the rest of the home from carrying the load. You also get a proper PRIVATE ENTRY instead of that awkward “straight into the living room” situation. Then the whole middle level opens up: BRIGHT KITCHEN, OPEN DINING, COMFORTABLE LIVING SPACE, a powder room exactly where it should be, and a full-width balcony with a BBQ gas line that makes summer dinners a very easy habit to start.Upstairs, BOTH BEDROOMS HAVE THEIR OWN FULL BATHROOMS, which changes everything. Roommate, guest, older child, single parent, investor— Laundry is up here too, where the clothes actually live. Revolutionary.The finish palette is clean and current - QUARTZ SURFACES, classic kitchen backsplash, 42" UPPER CABINETS, VINYL PLANK in all the right places, and a light, modern look that will age well. Better still, this is LOW-MAINTENANCE OWNERSHIP, so you get the benefits of a newer home without spending your weekends worrying about exterior upkeep.Poppy in Rangeview is built around connection—COMMUNITY GARDENS, PARKS, OPEN GREEN SPACE, and GATHERING PLACES that actually get used. Just a short walk away, Harvest Hall is planned as the heart of Market Square—a four-season indoor and outdoor space for resident events, casual meetups, and the kind of neighbourhood life people say they want but rarely find.December 2026 possession means no panic moves, no rushed decisions—just time to get everything lined up and walk into your new place when it’s ready. If you’ve been waiting for a townhouse that does MORE than just check boxes, this one deserves a closer look. Wander down and take in the Rangeview community to learn more.• PLEASE NOTE: Photos are of a SHOWHOME of the same model – fi t and finish may differ. Interior selections and floorplans shown in photos. (id:52806)
Property Details
|
MLS® Number
|
A2295904 |
|
Property Type
|
Single Family |
|
Community Name
|
Rangeview |
|
Amenities Near By
|
Park, Playground |
|
Community Features
|
Pets Allowed With Restrictions |
|
Features
|
Gas Bbq Hookup, Parking |
|
Parking Space Total
|
2 |
|
Plan
|
2412174 |
Building
|
Bathroom Total
|
3 |
|
Bedrooms Above Ground
|
2 |
|
Bedrooms Total
|
2 |
|
Appliances
|
Refrigerator, Range - Electric, Dishwasher, Microwave Range Hood Combo, Garage Door Opener |
|
Basement Type
|
None |
|
Constructed Date
|
2026 |
|
Construction Material
|
Wood Frame |
|
Construction Style Attachment
|
Attached |
|
Cooling Type
|
None |
|
Exterior Finish
|
Composite Siding, Vinyl Siding |
|
Fire Protection
|
Smoke Detectors |
|
Flooring Type
|
Carpeted, Vinyl Plank |
|
Foundation Type
|
Poured Concrete, Slab |
|
Half Bath Total
|
1 |
|
Heating Fuel
|
Natural Gas |
|
Heating Type
|
Forced Air, Other |
|
Stories Total
|
3 |
|
Size Interior
|
1,235 Ft2 |
|
Total Finished Area
|
1235 Sqft |
|
Type
|
Row / Townhouse |
Parking
|
Concrete
|
|
|
Attached Garage
|
2 |
|
Tandem
|
|
Land
|
Acreage
|
No |
|
Fence Type
|
Not Fenced |
|
Land Amenities
|
Park, Playground |
|
Landscape Features
|
Landscaped |
|
Size Depth
|
12.19 M |
|
Size Frontage
|
4.32 M |
|
Size Irregular
|
566.80 |
|
Size Total
|
566.8 Sqft|0-4,050 Sqft |
|
Size Total Text
|
566.8 Sqft|0-4,050 Sqft |
|
Zoning Description
|
M-2 |
Rooms
| Level |
Type |
Length |
Width |
Dimensions |
|
Second Level |
Living Room |
|
|
10.75 Ft x 13.50 Ft |
|
Second Level |
Dining Room |
|
|
12.00 Ft x 9.00 Ft |
|
Second Level |
Other |
|
|
15.25 Ft x 7.67 Ft |
|
Second Level |
Pantry |
|
|
Measurements not available |
|
Second Level |
Other |
|
|
7.00 Ft x 13.67 Ft |
|
Second Level |
2pc Bathroom |
|
|
Measurements not available |
|
Third Level |
Laundry Room |
|
|
Measurements not available |
|
Third Level |
Primary Bedroom |
|
|
10.08 Ft x 11.08 Ft |
|
Third Level |
3pc Bathroom |
|
|
Measurements not available |
|
Third Level |
Bedroom |
|
|
10.08 Ft x 11.00 Ft |
|
Third Level |
3pc Bathroom |
|
|
.00 Ft x .00 Ft |
|
Main Level |
Other |
|
|
Measurements not available |
https://www.realtor.ca/real-estate/29519149/78-heirloom-passage-se-calgary-rangeview